<< Previous

This asset is part of a series

Next >>
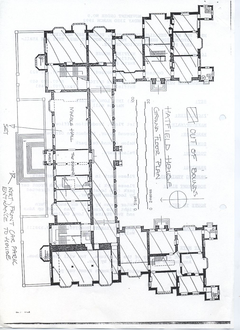
Description Reverse of Movement Order No.9. Printed map of Hatfield House with hadnwritten annotations. Photocopied A4 sheet.
Asset ID SPA0002336
Date 23/03/1992
Tags